 |
Matronics Email Lists Web Forum Interface to the Matronics Email Lists
|
| View previous topic :: View next topic |
| Author |
Message |
ashleysc(at)broadstripe.n Guest
|
Posted: Thu Jan 11, 2024 6:42 am Post subject: Z101B and battery in the rear wiring question |
|
|
Hi Werner;
Hi All;
I won't attempt to answer Werner's questions, but have one of my own. I had a 30 Amp shunt break in the middle, which may have led to my engine-out off-airport landing in my Zodiac 601-XLB. A Hall effect current sensor, like the one shown in his schematic, seems a much more secure way to go, since the conductor whose amperage is being measured remains continuous. My question is what specific Hall effect device should be used? A less important question: Is my present gauge compatible, or do I need a new one? The present gauge reads "amperage" directly from the shunt. Not a "deal killer," if I need a new gauge.
Cheers! Stu.
From: "Werner Schneider" <glastar(at)gmx.net>
To: aeroelectric-list(at)matronics.com
Sent: Thursday, January 11, 2024 5:57:39 AM
Subject: Z101B and battery in the rear wiring question
Hi folks,
I have an additional question here concerning Z101 which I use in my RV-10.
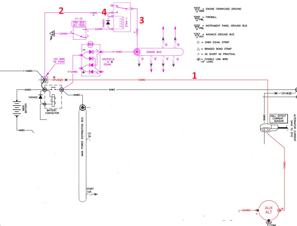
On the RV-10 the battery is behind the baggage compartment so that brings some question concerning wiring here the part of Z101 which shows that:
[img]cid:part1.GWAeFQX8.SUBWtEuy(at)gmx.net[/img]
The wire marked with 1 (feed line aux alternator) would be about 14 feet long, I plan to protect that wire with an ANL 40A fuse on the FW close to the alternator, but it would be always (unfused) hot on the other side as the battery is directly hooked to that wire.
The wire marked with 2 could be very short if the relay 704-1 is placed close to the battery
The wire marked with 3 would be again about 12 feet long, but would only be hot when either relay is on.
In this situation I would have 3 wire runs along these 12 feet #1, #3 and the starter wiring (I use 2 AWG there because of length) and #1 and the short #2 would always be hot.
Now I could reduce the wire runs, if I would move the Alt Bus feed relay (704-1) to the front and hook #1 wire directly on point #4 to the relay, I would still have the long #2 and the short #1 wire hot. But in summary its still one hot wire run along the fuselage.
I could mitigate that by moving the ANL fuse to the rear, but introducing a risk, if the Aux alternator is on, that the protection of the wire is on the other end of the source (Aux alternator).
Many thanks for the consideration and tips on that question what is best or common practice.
Cheers from Switzerland
Werner
| | - The Matronics AeroElectric-List Email Forum - | | | Use the List Feature Navigator to browse the many List utilities available such as the Email Subscriptions page, Archive Search & Download, 7-Day Browse, Chat, FAQ, Photoshare, and much more:
http://www.matronics.com/Navigator?AeroElectric-List |
|
| Description: |
|
| Filesize: |
73.3 KB |
| Viewed: |
7545 Time(s) |

|
|
|
| Back to top |
|
 |
user9253
Joined: 28 Mar 2008 Posts: 1972 Location: Riley TWP Michigan
|
Posted: Tue Jan 23, 2024 6:43 pm Post subject: Re: Z101B and battery in the rear wiring question |
|
|
In case of an immanent forced landing or smoke in the cockpit, the pilot should
have the ability to shut off all electrical power as close to the source as possible.
To comply with that rule, the battery contactor and other relays should be located
near the battery. The starter contactor may be located at the firewall.
Z-101 was not intended for a rear mounted battery. And so I recommend connecting
the 10AWG aux alternator wire that you have labeled "1" to the starter contactor
just like the main alternator is with a fuselink. If you do that, then
there will not be always-hot wires running from the back to the front.
Alternators do NOT need to be protected against producing too much current.
Alternators can not produce much more than they are rated for. Protection for
alternator feeders should be located closer to the battery end, not at the alternator end.
| | - The Matronics AeroElectric-List Email Forum - | | | Use the List Feature Navigator to browse the many List utilities available such as the Email Subscriptions page, Archive Search & Download, 7-Day Browse, Chat, FAQ, Photoshare, and much more:
http://www.matronics.com/Navigator?AeroElectric-List |
|
_________________ Joe Gores |
|
| Back to top |
|
 |
werner schneider
Joined: 24 May 2021 Posts: 62
|
Posted: Wed Jan 24, 2024 12:27 am Post subject: Z101B and battery in the rear wiring question |
|
|
Thanks a lot Joe for your thoughts,
if I connect the wire 1 at the starter contactor I would defy the idea
of Z101, that the aux alternator can feed the essential bus without
switching on the main contactor, so I rather would like to keep that as
in the original architecture.
The main alternator feed can be protected close to the starter contactor
here, as it would need a huge fuse when being close to the main
contactor (starter current).
Unfortunately due to CG reasons I need to have the battery at the rear
end I agree would be easier/more logical on the FW.....
Cheers Werner
On 24.01.2024 03:43, user9253 wrote:
| Quote: |
In case of an immanent forced landing or smoke in the cockpit, the pilot should
have the ability to shut off all electrical power as close to the source as possible.
To comply with that rule, the battery contactor and other relays should be located
near the battery. The starter contactor may be located at the firewall.
Z-101 was not intended for a rear mounted battery. And so I recommend connecting
the 10AWG aux alternator wire that you have labeled "1" to the starter contactor
just like the main alternator is with a fuselink. If you do that, then
there will not be always-hot wires running from the back to the front.
Alternators do NOT need to be protected against producing too much current.
Alternators can not produce much more than they are rated for. Protection for
alternator feeders should be located closer to the battery end, not at the alternator end.
--------
Joe Gores
Read this topic online here:
http://forums.matronics.com/viewtopic.php?p=513130#513130
|
| | - The Matronics AeroElectric-List Email Forum - | | | Use the List Feature Navigator to browse the many List utilities available such as the Email Subscriptions page, Archive Search & Download, 7-Day Browse, Chat, FAQ, Photoshare, and much more:
http://www.matronics.com/Navigator?AeroElectric-List |
|
|
|
| Back to top |
|
 |
user9253
Joined: 28 Mar 2008 Posts: 1972 Location: Riley TWP Michigan
|
Posted: Wed Jan 24, 2024 2:23 am Post subject: Re: Z101B and battery in the rear wiring question |
|
|
| Quote: | if I connect the wire 1 at the starter contactor I would defy the idea
of Z101, that the aux alternator can feed the essential bus without
switching on the main contactor |
That is not correct. If your wire #1 is connected to the starter contactor, then
the path is from Aux Alt to starter contactor to downstream side of battery
contactor to pink bridge rectifier diode to normal feed to brownout/AUX Bus.
You might have to reduce the main bus electrical load depending
on the capability of the aux alternator.
| | - The Matronics AeroElectric-List Email Forum - | | | Use the List Feature Navigator to browse the many List utilities available such as the Email Subscriptions page, Archive Search & Download, 7-Day Browse, Chat, FAQ, Photoshare, and much more:
http://www.matronics.com/Navigator?AeroElectric-List |
|
_________________ Joe Gores |
|
| Back to top |
|
 |
werner schneider
Joined: 24 May 2021 Posts: 62
|
Posted: Wed Jan 24, 2024 3:09 am Post subject: Z101B and battery in the rear wiring question |
|
|
Hi Joe,
how could I doubt your advice (I just overlooked that path via the diode)
That is very elegant, as the Aux would source the whole system the wire
run would be short (and common to both alternators) (you would not use
the blade fuses instead a fusible link in front of the starter contactor
point?)
So there would be a bit a different logic:
- standard feed by main alternator to both buses
- in case main fails Aux takes over all buses (independent if battery
contactor is on or off (but should remain onĀ to have stabilizing
battery in system), reducing load on main bus could keep load in limits
of Aux alternator
- in case both fail the alt feed switch would connect the
essential/engine bus directly to the bat.
Simple and elegant, I bow my head to you for that solution, thank you!!
Werner
On 24.01.2024 11:23, user9253 wrote:
| Quote: |
> if I connect the wire 1 at the starter contactor I would defy the idea
> of Z101, that the aux alternator can feed the essential bus without
> switching on the main contactor
That is not correct. If your wire #1 is connected to the starter contactor, then
the path is from Aux Alt to starter contactor to downstream side of battery
contactor to pink bridge rectifier diode to normal feed to brownout/AUX Bus.
You might have to reduce the main bus electrical load depending
on the capability of the aux alternator.
--------
Joe Gores
Read this topic online here:
http://forums.matronics.com/viewtopic.php?p=513132#513132
|
| | - The Matronics AeroElectric-List Email Forum - | | | Use the List Feature Navigator to browse the many List utilities available such as the Email Subscriptions page, Archive Search & Download, 7-Day Browse, Chat, FAQ, Photoshare, and much more:
http://www.matronics.com/Navigator?AeroElectric-List |
|
|
|
| Back to top |
|
 |
werner schneider
Joined: 24 May 2021 Posts: 62
|
Posted: Wed Jan 24, 2024 4:06 am Post subject: Z101B and battery in the rear wiring question |
|
|
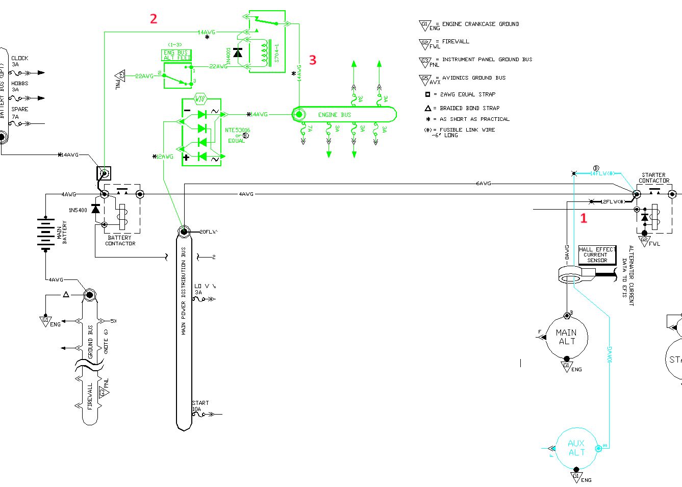
So it would look something like this, only long wire would be #3 but could be disconnected via the relay high concentration on starter contactor now of # of connection
[img]cid:part1.3lu8MK3M.Dp1gWLLD(at)gmx.net[/img]
On 24.01.2024 11:23, user9253 wrote:
| Quote: | | Quote: | --> AeroElectric-List message posted by: "user9253" <fransew(at)gmail.com> (fransew(at)gmail.com)
| Quote: | if I connect the wire 1 at the starter contactor I would defy the idea
of Z101, that the aux alternator can feed the essential bus without
switching on the main contactor
|
That is not correct. If your wire #1 is connected to the starter contactor, then
the path is from Aux Alt to starter contactor to downstream side of battery
contactor to pink bridge rectifier diode to normal feed to brownout/AUX Bus.
You might have to reduce the main bus electrical load depending
on the capability of the aux alternator.
--------
Joe Gores
Read this topic online here:
http://forums.matronics.com/viewtopic.php?p=513132#513132
====================================
nics.com/Navigator?AeroElectric-List">http://www.matronics.com/Navigator?AeroElectric-List
====================================
tronics.com">http://forums.matronics.com
====================================
onics.com">http://wiki.matronics.com
====================================
s.com/contribution">https://matronics.com/contribution
====================================
| |
| | - The Matronics AeroElectric-List Email Forum - | | | Use the List Feature Navigator to browse the many List utilities available such as the Email Subscriptions page, Archive Search & Download, 7-Day Browse, Chat, FAQ, Photoshare, and much more:
http://www.matronics.com/Navigator?AeroElectric-List |
|
| Description: |
|
| Filesize: |
121.59 KB |
| Viewed: |
7501 Time(s) |

|
|
|
| Back to top |
|
 |
user9253
Joined: 28 Mar 2008 Posts: 1972 Location: Riley TWP Michigan
|
Posted: Wed Jan 24, 2024 7:49 am Post subject: Re: Z101B and battery in the rear wiring question |
|
|
Werner, some well respected people like Bob N. and Charlie E. prefer to use
fusible links instead of ANL fuses. Fusible links have advantages: light weight and
no exposed terminals that could short out and less money. It is a matter of personal choice.
| | - The Matronics AeroElectric-List Email Forum - | | | Use the List Feature Navigator to browse the many List utilities available such as the Email Subscriptions page, Archive Search & Download, 7-Day Browse, Chat, FAQ, Photoshare, and much more:
http://www.matronics.com/Navigator?AeroElectric-List |
|
_________________ Joe Gores |
|
| Back to top |
|
 |
|
|
You cannot post new topics in this forum You cannot reply to topics in this forum You cannot edit your posts in this forum You cannot delete your posts in this forum You cannot vote in polls in this forum You cannot attach files in this forum You can download files in this forum
|
Powered by phpBB © 2001, 2005 phpBB Group
|