 |
Matronics Email Lists Web Forum Interface to the Matronics Email Lists
|
| View previous topic :: View next topic |
| Author |
Message |
ces308

Joined: 03 Nov 2008 Posts: 317 Location: houghton lake ,mi
|
Posted: Mon Oct 04, 2010 7:59 pm Post subject: HELP ! SNOW SKI PLANS |
|
|
Hello all....
I have seen and even copied plans to covert water skis to snowskis and I can not find them anywhere...I did find some in older post ,but could not make them come up. If you have a set of plans,will you please post them again ??
Thank you in advance !!
chris ambrose
M3X/Jabiru 154. hrs
N327CS
| | - The Matronics Kolb-List Email Forum - | | | Use the List Feature Navigator to browse the many List utilities available such as the Email Subscriptions page, Archive Search & Download, 7-Day Browse, Chat, FAQ, Photoshare, and much more:
http://www.matronics.com/Navigator?Kolb-List |
|
|
|
| Back to top |
|
 |
rickofudall

Joined: 19 Sep 2009 Posts: 1392 Location: Udall, KS, USA
|
Posted: Tue Oct 05, 2010 9:09 am Post subject: HELP ! SNOW SKI PLANS |
|
|
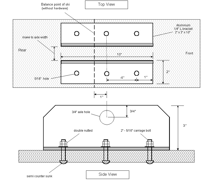
These are the plans I got from the forum. I didn't make a note of who sent them. I apologize.
Rick Girard
On Mon, Oct 4, 2010 at 10:59 PM, ces308 <ces308(at)ldaco.com (ces308(at)ldaco.com)> wrote:
| Quote: | --> Kolb-List message posted by: "ces308" <ces308(at)ldaco.com (ces308(at)ldaco.com)>
Hello all....
I have seen and even copied plans to covert water skis to snowskis and I can not find them anywhere...I did find some in older post ,but could not make them come up. If you have a set of plans,will you please post them again ??
Thank you in advance !!
chris ambrose
M3X/Jabiru 154. hrs
N327CS
Read this topic online here:
http://forums.matronics.com/viewtopic.php?p=314742#314742
===========
arget="_blank">http://www.matronics.com/Navigator?Kolb-List
===========
http://forums.matronics.com
===========
le, List Admin.
="_blank">http://www.matronics.com/contribution
===========
|
--
Zulu Delta
Kolb Mk IIIC
582 Gray head
4.00 C gearbox
3 blade WD
Thanks, Homer GBYM
It is not bigotry to be certain we are right; but it is bigotry to be unable to imagine how we might possibly have gone wrong.
- G.K. Chesterton
| | - The Matronics Kolb-List Email Forum - | | | Use the List Feature Navigator to browse the many List utilities available such as the Email Subscriptions page, Archive Search & Download, 7-Day Browse, Chat, FAQ, Photoshare, and much more:
http://www.matronics.com/Navigator?Kolb-List |
|
| Description: |
|
| Filesize: |
194.88 KB |
| Viewed: |
22862 Time(s) |

|
| Description: |
|
| Filesize: |
127.97 KB |
| Viewed: |
22862 Time(s) |

|
_________________ The smallest miracle right in front of you is enough to make you happy.... |
|
| Back to top |
|
 |
ces308

Joined: 03 Nov 2008 Posts: 317 Location: houghton lake ,mi
|
Posted: Tue Oct 05, 2010 9:52 am Post subject: Re: HELP ! SNOW SKI PLANS |
|
|
Thank you Rick !
These were the ones....we be skiing this winter !! If there are any others out there you would be willing to share I would like to see them too !
Thanks !
chris ambrose
M3X / Jabiru 154.hrs
N327CS
| | - The Matronics Kolb-List Email Forum - | | | Use the List Feature Navigator to browse the many List utilities available such as the Email Subscriptions page, Archive Search & Download, 7-Day Browse, Chat, FAQ, Photoshare, and much more:
http://www.matronics.com/Navigator?Kolb-List |
|
|
|
| Back to top |
|
 |
Ralph B

Joined: 14 Apr 2007 Posts: 367 Location: Mound Minnesota
|
Posted: Tue Oct 05, 2010 11:36 am Post subject: Re: HELP ! SNOW SKI PLANS |
|
|
| Quote: | These are the plans I got from the forum. I didn't make a note of who sent them. I apologize.
Rick Girard |
I'll take credit for those plans. I made them in March of 2001 for my Firestar. These are uncut water skis. I got them new at Play-it-Again-Sports for $75. It's important the neoprene tubing is used so the clamps don't slide down the tapered gear leg. Use lacquer thinner on them before installing. Use safety wire on the clamps. Use carriage bolts. Hex bolts will be too much drag on the underside of the ski. Wooden skis must be waxed. Composite skis don't need wax. Some composite skis have rods embedded along the sides like these, so be careful when drilling (see pictures).
Ralph B
| | - The Matronics Kolb-List Email Forum - | | | Use the List Feature Navigator to browse the many List utilities available such as the Email Subscriptions page, Archive Search & Download, 7-Day Browse, Chat, FAQ, Photoshare, and much more:
http://www.matronics.com/Navigator?Kolb-List |
|
| Description: |
|
| Filesize: |
139.57 KB |
| Viewed: |
22843 Time(s) |

|
| Description: |
|
| Filesize: |
145.42 KB |
| Viewed: |
22843 Time(s) |

|
| Description: |
|
| Filesize: |
135.62 KB |
| Viewed: |
22843 Time(s) |

|
| Description: |
|
| Filesize: |
150.32 KB |
| Viewed: |
22843 Time(s) |

|
_________________ Ralph B
Kolb Kolbra 912uls
N20386
550 hours |
|
| Back to top |
|
 |
ces308

Joined: 03 Nov 2008 Posts: 317 Location: houghton lake ,mi
|
Posted: Tue Oct 05, 2010 12:20 pm Post subject: Re: HELP ! SNOW SKI PLANS |
|
|
Hi Ralph !
Thank you for the pictures too ! I thought they where your plans ,but I wasn't sure ...When you set them up,do you keep the front up a ways?? That is do you load the bungie to lift the front of the skis??
chris ambrose
| | - The Matronics Kolb-List Email Forum - | | | Use the List Feature Navigator to browse the many List utilities available such as the Email Subscriptions page, Archive Search & Download, 7-Day Browse, Chat, FAQ, Photoshare, and much more:
http://www.matronics.com/Navigator?Kolb-List |
|
|
|
| Back to top |
|
 |
ces308

Joined: 03 Nov 2008 Posts: 317 Location: houghton lake ,mi
|
Posted: Tue Oct 05, 2010 12:34 pm Post subject: Re: HELP ! SNOW SKI PLANS |
|
|
Ralph....do you think they need any kind of keel on the bottom??
chris ambrose
| | - The Matronics Kolb-List Email Forum - | | | Use the List Feature Navigator to browse the many List utilities available such as the Email Subscriptions page, Archive Search & Download, 7-Day Browse, Chat, FAQ, Photoshare, and much more:
http://www.matronics.com/Navigator?Kolb-List |
|
|
|
| Back to top |
|
 |
neilsenrm(at)gmail.com Guest
|
Posted: Tue Oct 05, 2010 1:37 pm Post subject: HELP ! SNOW SKI PLANS |
|
|
I have a set if water skiis that were disigned to be attached to the stockgear leg brackets. There are cables that keep the skiis from falling downless than 20-30 degrees and cables that keeps the skiis from riding up more than 30 degrees. The are loops in th cable that with the addition of a bungy will keep the skiies pointed up about 30 degrees in flight. The mount is designed to ride about 1/2 inch higher than pavement with the tails dragging. In deep snow the wheels drop down into the snow and the skii takes over
I can send photos. I never fllew the plne in winter so ther is no need to keep thm.
Make me a offer
Rick Neilsen
RedriveVW Powered MKIIIC
On Tue, Oct 5, 2010 at 3:36 PM, Ralph B <rstar447(at)gmail.com (rstar447(at)gmail.com)> wrote:
[quote]--> Kolb-List message posted by: "Ralph B" <rstar447(at)gmail.com (rstar447(at)gmail.com)>
| Quote: | These are the plans I got from the forum. I didn't make a note of who sent them. I apologize.
Rick Girard
|
I'll take credit for those plans. I made them in March of 2001 for my Firestar. These are uncut water skis. I got them new at Play-it Again-Sports for $75. It's important the neoprene tubing is used so the clamps don't slide down the tapered gear leg. Use lacquer thinner on them before installing. Use safety wire on the clamps. Use carriage bolts. Hex bolts will be too much drag on the underside of the ski. Wooden skis must be waxed. Composite skis don't need wax. Some composite skis have rods embedded along the sides like these, so be careful when drilling (see pictures).
Ralph B
--------
Ralph B
Original Firestar 447
N91493 E-AB
1000 hours
23 years flying it
Kolbra 912UL
N20386
2 years flying it
120 hrs
Read this topic online here:
http://forums.matronics.com/viewtopic.php?p=314834#314834
Attachments:
http://forums.matronics.com//files/right_ski__723.jpg
http://forums.matronics.com//files/left_ski__638.jpg
http://forums.matronics.com//files/fly_over__460.jpg
http://forums.matronics.com//files/winter_flying_2__739.jpg<===================
Browse, Chat, FAQ,
="http://www.matronics.com/Navigator?Kolb-List" target="_blank">http://====
http://forums.mle, List Admin.
=====
[b]
| | - The Matronics Kolb-List Email Forum - | | | Use the List Feature Navigator to browse the many List utilities available such as the Email Subscriptions page, Archive Search & Download, 7-Day Browse, Chat, FAQ, Photoshare, and much more:
http://www.matronics.com/Navigator?Kolb-List |
|
|
|
| Back to top |
|
 |
ces308

Joined: 03 Nov 2008 Posts: 317 Location: houghton lake ,mi
|
Posted: Tue Oct 05, 2010 3:28 pm Post subject: Re: HELP ! SNOW SKI PLANS |
|
|
Rick,
Can you send me pictures of yours? ces308(at)ldaco.com .
chris ambrose
| | - The Matronics Kolb-List Email Forum - | | | Use the List Feature Navigator to browse the many List utilities available such as the Email Subscriptions page, Archive Search & Download, 7-Day Browse, Chat, FAQ, Photoshare, and much more:
http://www.matronics.com/Navigator?Kolb-List |
|
|
|
| Back to top |
|
 |
rickofudall

Joined: 19 Sep 2009 Posts: 1392 Location: Udall, KS, USA
|
Posted: Tue Oct 05, 2010 4:07 pm Post subject: HELP ! SNOW SKI PLANS |
|
|
Ralph, Sorry about that, I'll rename the files so I don't forget. I found a brand new pair of water skis on Craig's List and the owner was an airplane guy who was willing to let them go for $45. After the new rudder and tail wheel, they're next up on the project list. Thanks again, Ralph.
Rick
On Tue, Oct 5, 2010 at 2:36 PM, Ralph B <rstar447(at)gmail.com (rstar447(at)gmail.com)> wrote:
--
Zulu Delta
Kolb Mk IIIC
582 Gray head
4.00 C gearbox
3 blade WD
Thanks, Homer GBYM
It is not bigotry to be certain we are right; but it is bigotry to be unable to imagine how we might possibly have gone wrong.
- G.K. Chesterton
[quote][b]
| | - The Matronics Kolb-List Email Forum - | | | Use the List Feature Navigator to browse the many List utilities available such as the Email Subscriptions page, Archive Search & Download, 7-Day Browse, Chat, FAQ, Photoshare, and much more:
http://www.matronics.com/Navigator?Kolb-List |
|
_________________ The smallest miracle right in front of you is enough to make you happy.... |
|
| Back to top |
|
 |
by0ung(at)brigham.net Guest
|
Posted: Tue Oct 05, 2010 4:52 pm Post subject: HELP ! SNOW SKI PLANS |
|
|
Hello all....
I have seen and even copied plans to covert water skis to snowskis and I can not find them anywhere...I did find some in older post ,but could not make them come up. If you have a set of plans,will you please post them again ??
Thank you in advance !!
chris ambrose
M3X/Jabiru 154. hrs
N327CS
| Quote: | >>>>>>>>>>>>>>>>>>>>>>>>>>>>
|
i am no expert here... but my 2 cents worth,,, i have never seen any pair of skis, water or snow that were not longer in the front than they are in the back,,,, usually by 10 inches or so..... that way, all elce being equal.. if you were to land in soft snow... the shorter back will sink into the snow deeper and keep the tips up. even more so than the curve in the ski.
boyd young
[quote][b]
| | - The Matronics Kolb-List Email Forum - | | | Use the List Feature Navigator to browse the many List utilities available such as the Email Subscriptions page, Archive Search & Download, 7-Day Browse, Chat, FAQ, Photoshare, and much more:
http://www.matronics.com/Navigator?Kolb-List |
|
|
|
| Back to top |
|
 |
russkinne(at)mac.com Guest
|
Posted: Tue Oct 05, 2010 4:54 pm Post subject: HELP ! SNOW SKI PLANS |
|
|
RickJust a suggestion -- but be SURE your skis can't flip down in flight; you wouldn't like what would happen. And on the ground, just about as bad.
In Alaska many pilots put in TWO steel cables (on each ski) to keep the tips from dropping. And try to avoid any sharp edges which can quickly trip the aircraft if any sideways motion occurs. Ever 'catch an edge' when skiing? Same thing. Not pleasant
Good luck, should be great fun
Russ K
On Oct 5, 2010, at 8:04 PM, Richard Girard wrote:
| Quote: | Ralph, Sorry about that, I'll rename the files so I don't forget. I found a brand new pair of water skis on Craig's List and the owner was an airplane guy who was willing to let them go for $45. After the new rudder and tail wheel, they're next up on the project list. Thanks again, Ralph.
Rick
On Tue, Oct 5, 2010 at 2:36 PM, Ralph B <rstar447(at)gmail.com (rstar447(at)gmail.com)> wrote:
--
Zulu Delta
Kolb Mk IIIC
582 Gray head
4.00 C gearbox
3 blade WD
Thanks, Homer GBYM
It is not bigotry to be certain we are right; but it is bigotry to be unable to imagine how we might possibly have gone wrong.
- G.K. Chesterton
| Quote: |
href="http://www.matronics.com/Navigator?Kolb-List">http://www.matronics.com/Navigator?Kolb-List
href="http://forums.matronics.com">http://forums.matronics.com
href="http://www.matronics.com/contribution">http://www.matronics.com/contribution
|
|
| | - The Matronics Kolb-List Email Forum - | | | Use the List Feature Navigator to browse the many List utilities available such as the Email Subscriptions page, Archive Search & Download, 7-Day Browse, Chat, FAQ, Photoshare, and much more:
http://www.matronics.com/Navigator?Kolb-List |
|
|
|
| Back to top |
|
 |
beauford
Joined: 25 Apr 2007 Posts: 127 Location: Brandon, FL
|
Posted: Tue Oct 05, 2010 5:12 pm Post subject: HELP ! SNOW SKI PLANS |
|
|
OK guys… been lurking here on this snow ski thingy… watching the lively exchanges of hot info…
…can’t stand it any more… I give up…
What is snow…?
Beauford
FF 076
Brandon, FL
DO NOT ARCHIVE
Subject: Re: HELP ! SNOW SKI PLANS
Hello all....
I have seen and even copied plans to covert water skis to snowskis and I can not find them anywhere...I did find some in older post ,but could not make them come up. If you have a set of plans,will you please post them again ??
Thank you in advance !!
chris ambrose
M3X/Jabiru 154. hrs
N327CS
>>>>>>>>>>>>>>>>>>>>>>>>>>>>>
i am no expert here... but my 2 cents worth,,, i have never seen any pair of skis, water or snow that were not longer in the front than they are in the back,,,, usually by 10 inches or so..... that way, all elce being equal.. if you were to land in soft snow... the shorter back will sink into the snow deeper and keep the tips up. even more so than the curve in the ski.
boyd young
==============[/b] [b]
| | - The Matronics Kolb-List Email Forum - | | | Use the List Feature Navigator to browse the many List utilities available such as the Email Subscriptions page, Archive Search & Download, 7-Day Browse, Chat, FAQ, Photoshare, and much more:
http://www.matronics.com/Navigator?Kolb-List |
|
|
|
| Back to top |
|
 |
JetPilot

Joined: 10 Jan 2006 Posts: 1246
|
Posted: Tue Oct 05, 2010 5:33 pm Post subject: Re: HELP ! SNOW SKI PLANS |
|
|
Chris,
Be really really careful that your Skis can not twist up or down on its axle in flight, this could cause a rolling moment that may be very difficult or impossible to control. Its great to do mods to our experimental aircraft, but also look at this as a license to kill yourself. Make sure you do a bunch of research before making any significant modification to your plane. Aviation is very unforgiving.
Mike
| | - The Matronics Kolb-List Email Forum - | | | Use the List Feature Navigator to browse the many List utilities available such as the Email Subscriptions page, Archive Search & Download, 7-Day Browse, Chat, FAQ, Photoshare, and much more:
http://www.matronics.com/Navigator?Kolb-List |
|
_________________ "NO FEAR" - If you have no fear you did not go as fast as you could have !!!
Kolb MK-III Xtra, 912-S |
|
| Back to top |
|
 |
Ralph B

Joined: 14 Apr 2007 Posts: 367 Location: Mound Minnesota
|
Posted: Tue Oct 05, 2010 6:08 pm Post subject: Re: HELP ! SNOW SKI PLANS |
|
|
| Quote: | Hi Ralph !
Thank you for the pictures too ! I thought they where your plans ,but I wasn't sure ...When you set them up,do you keep the front up a ways?? That is do you load the bungie to lift the front of the skis??
chris ambrose |
Chris, the bungee cord must be strong to bring the tip of the ski up if snow weighs it down. The angle must not be too high. I put a standard patio brick underneath the ski tip and adjust the back limit cord so it is tight. These cords or cables are very important as the ski could tip up too far and cause so much drag that it would be hard to keep it in the air. If the ski is pointed down on landing, it would dig in and cause the aircraft to flip over. I have flown many years with this setup, but it requires everything to be in place before flight. The long skis are better in deep snow (more surface area to ride on). I have taken off and landed in 3 feet of snow with these. No bottom hardware such as a rudder is needed as the aircraft can turn just fine without it. I took this hardware off when I got the skis. By leaving the water skis long, the attached limit cords are long and will keep the skis more stable. If you have short skis with this setup, it can be dangerous as I have witnessed a guy flip upside down on landing as the shortened skis also flipped upside down while he was in the air. The skis wound around the gear leg. Be careful. The limit cords and long skis are the way to go.
I change from wheels to skis and back again during the winter (see pic).
Ralph
| | - The Matronics Kolb-List Email Forum - | | | Use the List Feature Navigator to browse the many List utilities available such as the Email Subscriptions page, Archive Search & Download, 7-Day Browse, Chat, FAQ, Photoshare, and much more:
http://www.matronics.com/Navigator?Kolb-List |
|
| Description: |
|
| Filesize: |
90.74 KB |
| Viewed: |
22780 Time(s) |

|
_________________ Ralph B
Kolb Kolbra 912uls
N20386
550 hours |
|
| Back to top |
|
 |
Ralph B

Joined: 14 Apr 2007 Posts: 367 Location: Mound Minnesota
|
|
| Back to top |
|
 |
rlaird

Joined: 10 Jan 2006 Posts: 373 Location: Houston
|
Posted: Wed Oct 06, 2010 7:35 am Post subject: HELP ! SNOW SKI PLANS |
|
|
Beauford --
It's like someone spilled a gazillion snowcones all over your field and runway... but without the syrup.
-- R
On Tue, Oct 5, 2010 at 8:08 PM, Beauford <beauford173(at)verizon.net (beauford173(at)verizon.net)> wrote:
[quote]
OK guys… been lurking here on this snow ski thingy… watching the lively exchanges of hot info…
…can’t stand it any more… I give up…
What is snow…?
Beauford
FF 076
Brandon, FL
DO NOT ARCHIVE
Subject: Re: HELP ! SNOW SKI PLANS
Hello all....
I have seen and even copied plans to covert water skis to snowskis and I can not find them anywhere...I did find some in older post ,but could not make them come up. If you have a set of plans,will you please post them again ??
Thank you in advance !!
chris ambrose
M3X/Jabiru 154. hrs
N327CS
>>>>>>>>>>>>>>>>>>>>>>>>>>>>>
i am no expert here... but my 2 cents worth,,, i have never seen any pair of skis, water or snow that were not longer in the front than they are in the back,,,, usually by 10 inches or so..... that way, all elce being equal.. if you were to land in soft snow... the shorter back will sink into the snow deeper and keep the tips up. even more so than the curve in the ski.
boyd young
==============
| Quote: |
get="_blank">http://www.matronics.com/Navigator?Kolb-List
tp://forums.matronics.com
_blank">http://www.matronics.com/contribution
|
[b]
| | - The Matronics Kolb-List Email Forum - | | | Use the List Feature Navigator to browse the many List utilities available such as the Email Subscriptions page, Archive Search & Download, 7-Day Browse, Chat, FAQ, Photoshare, and much more:
http://www.matronics.com/Navigator?Kolb-List |
|
_________________ ~~~~~~~~~~~~~~~~~~~
Robert Laird
formerly: MkIIIc w/ 912ULS & Gyrobee
current: Autogyro Cavalon w/ 914ULS
Houston, TX area
http://www.Texas-Flyer.com |
|
| Back to top |
|
 |
russkinne(at)mac.com Guest
|
Posted: Mon Oct 11, 2010 11:57 am Post subject: HELP ! SNOW SKI PLANS |
|
|
Beauford'snow' is sorta thin ice. Doesn't last as long in your glass.
But it does look pretty on a Kolb
do not archive
On Oct 5, 2010, at 9:08 PM, Beauford wrote:
| Quote: | OK guys… been lurking here on this snow ski thingy… watching the lively exchanges of hot info…
…can’t stand it any more… I give up…
What is snow…?
Beauford
FF 076
Brandon, FL
DO NOT ARCHIVE
Subject: Re: HELP ! SNOW SKI PLANS
Hello all....
I have seen and even copied plans to covert water skis to snowskis and I can not find them anywhere...I did find some in older post ,but could not make them come up. If you have a set of plans,will you please post them again ??
Thank you in advance !!
chris ambrose
M3X/Jabiru 154. hrs
N327CS
| Quote: | >>>>>>>>>>>>>>>>>>>>>>>>>>>>
|
i am no expert here... but my 2 cents worth,,, i have never seen any pair of skis, water or snow that were not longer in the front than they are in the back,,,, usually by 10 inches or so..... that way, all elce being equal.. if you were to land in soft snow... the shorter back will sink into the snow deeper and keep the tips up. even more so than the curve in the ski.
boyd young
============== | Quote: |
style="color: blue; text-decoration: underline; ">http://www.matronics.com/Navigator?Kolb-List
blue; text-decoration: underline; ">http://forums.matronics.com
style="color: blue; text-decoration: underline; ">http://www.matronics.com/contribution
|
|
| | - The Matronics Kolb-List Email Forum - | | | Use the List Feature Navigator to browse the many List utilities available such as the Email Subscriptions page, Archive Search & Download, 7-Day Browse, Chat, FAQ, Photoshare, and much more:
http://www.matronics.com/Navigator?Kolb-List |
|
|
|
| Back to top |
|
 |
ces308

Joined: 03 Nov 2008 Posts: 317 Location: houghton lake ,mi
|
Posted: Mon Oct 11, 2010 6:21 pm Post subject: Re: HELP ! SNOW SKI PLANS |
|
|
Ralph,
The deepest snow I will be in is no more that a 6 inch drift across the patted down snowmobile track on the lake....I was on the lake last year with wheel,but it was those little drifts that worried me...I will post pix when they are finished and on...
chris ambrose
M3X/Jabiru
N327CS
| | - The Matronics Kolb-List Email Forum - | | | Use the List Feature Navigator to browse the many List utilities available such as the Email Subscriptions page, Archive Search & Download, 7-Day Browse, Chat, FAQ, Photoshare, and much more:
http://www.matronics.com/Navigator?Kolb-List |
|
|
|
| Back to top |
|
 |
|
|
You cannot post new topics in this forum You cannot reply to topics in this forum You cannot edit your posts in this forum You cannot delete your posts in this forum You cannot vote in polls in this forum You cannot attach files in this forum You can download files in this forum
|
Powered by phpBB © 2001, 2005 phpBB Group
|